御船小学校前に土地面積228.29㎡(69.0坪):建物 113.85㎡ 4LDK+フリースペース3畳の建売モデルの工事が始まりました、完成時期は26年3月末を予定しております、販売価格は 税込み3148万 購入の申し込みも同時に行っております、建物のお引渡し等に付きましてはご相談となります、小学校まで50m、中学校まで400mと近く通学にも安全で良い場所となっております、又 現地は町中心部にあり 公共施設やバス停 日頃のショッピングにも徒歩で行けます、太陽光パネルも8.6kw搭載可能 販売価格に+55万(申請費、設置費、電気工事、足場)を追加すれば、太陽光パネル8.6kwをリース(10年間)で利用できます、リース代は売電収入(10年間)でお支払いできますので、追加の返済はありません、リース終了後はお客様の所有物となり高騰する電気代の軽減になります、売電シュミレーションもご用意しておりますので、お気軽にお問い合わせください、工事の様子はHPの工事進捗で見ることが出来ます、又早めのお申込で【みらいエコ住宅補助金】も受付可能です。

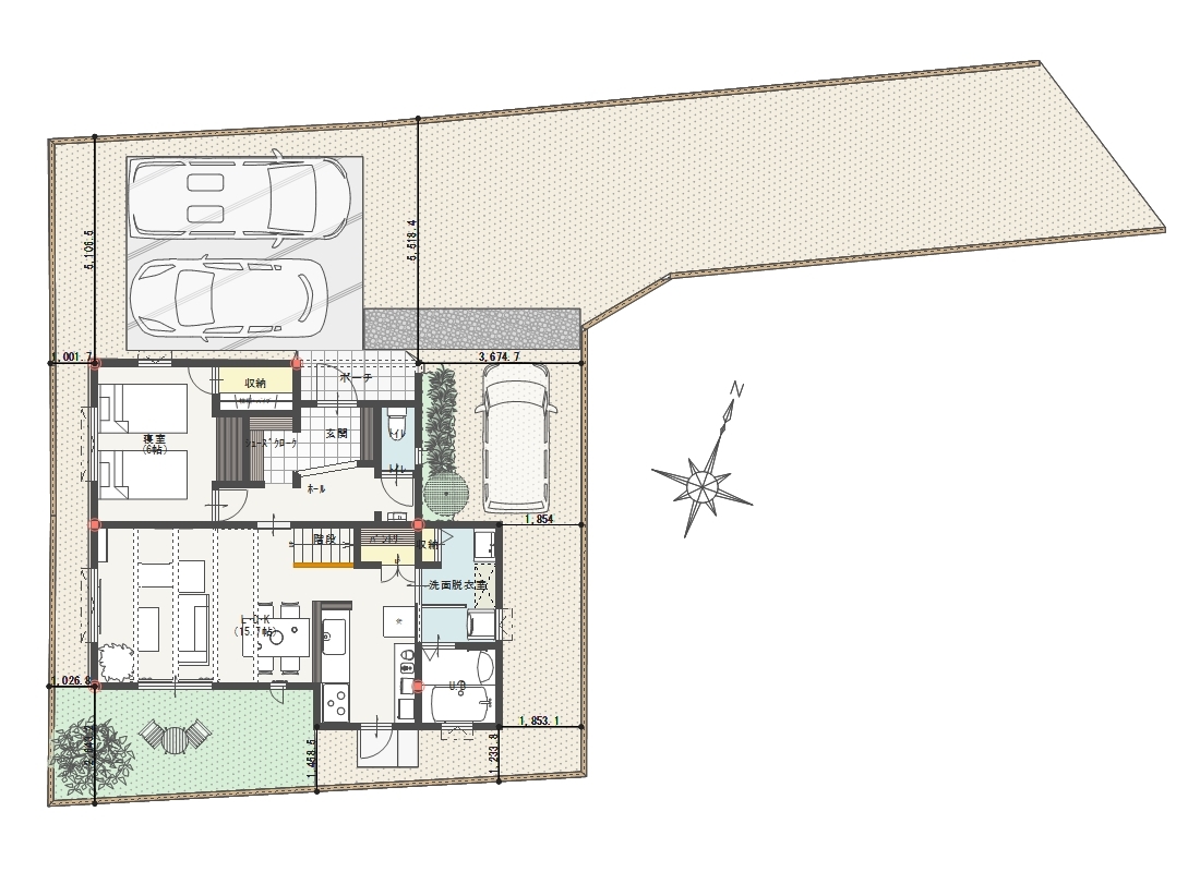
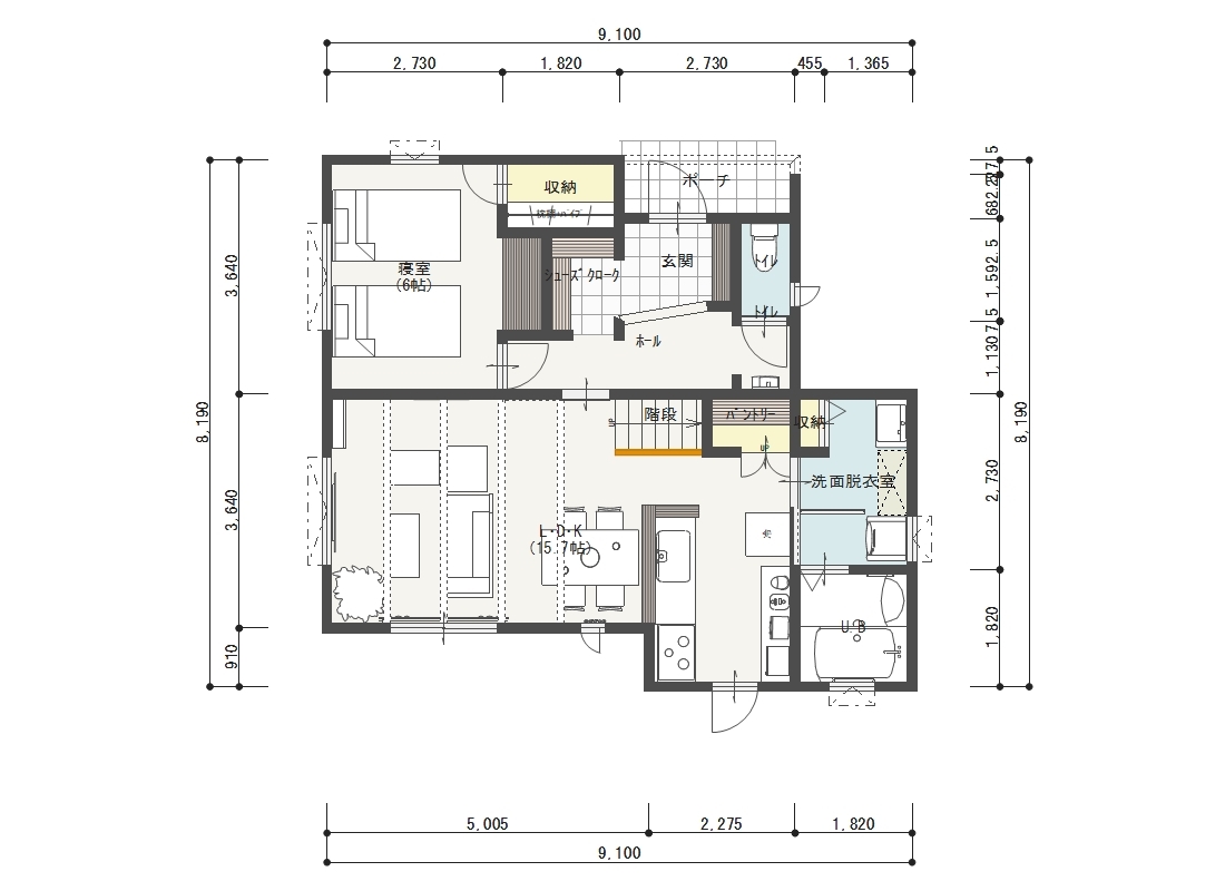
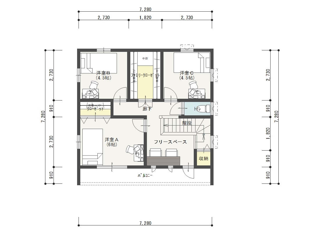
間取り・区画図

1階平面:LDK16帖、寝室6帖

2階平面図;子供室×2部屋、寝室1部屋、フリースペース3畳、ウォークインクローゼット

外観完成予想図:駐車スペース3台以上可

外観完成予想図:太陽光パネル8.6kw搭載可

室内リビング完成イメージパース

室内キッチン~ダイニング完成イメージパース

2階フリースペース完成イメージ

物件の主な仕様内容

2階洋室
その他のこと
- 所在地
- 上益城郡御船町大字御船952-5
- 最寄の交通機関
- 城山公園前バス停 徒歩3分
- 小学校区
- 御船小学校
- 中学校区
- 御船中学校
- 最寄の施設等
- ショッピングマイン:御船郵便局:熊本第一信用金庫:城山公園:たかぞえ内科
- 取引態様
- 売主
- 現況
- 建築中
御船町御船小前建売モデルのご案内🎈 周辺環境

ショッピングプラザマイン

御船郵便局

熊本第一信用金庫

御船小学校

御船中学校

ドラッグモリ

ホームワイド

御船町役場

ダイレックス

マルショク